美式透天宅帶你看!屋主自地自建,滿滿自然芬多精的家
屋主想要…
1. 正式美式玄關2. 親子共享的起居空間
3. 男主人的視聽空間
案例背景
房屋狀況
自地自建-透天
設計風格
現代簡約
裝潢預算
130萬
房屋坪數
80坪
空間格局
4/3/3

裝潢緣起
「這是屋主自地自建的透天宅,我們接手裝修時已是建築完工階段,因此,格局與空間用途大致抵定,設計團隊除了要協助屋主整合機能,更重是要將結構的缺失做調整,並落實風格裝修。」三月木設計團隊說明,屋主很喜歡落地窗景引入的戶外綠意,為此特別跳脫傳統客廳擺設,以一家6口的生活模式為主軸,在開放格局中用懶人椅取代沙發,讓家人能更盡興地享受沉浸式的芬多精起居空間。起居區另一端則以書牆搭配貼牆的大桌椅區,打造出全家人共讀、遊戲,且明亮的舒適閱讀環境。
格局安排
因應屋主需求,在地下一樓規劃視聽室,加入簡單的輕食吧檯,無論是男主人獨享、或家人共享都很舒適。至於二樓則是臥房區,主臥加上三間小孩房讓全家人都有各自舒適的私密空間。
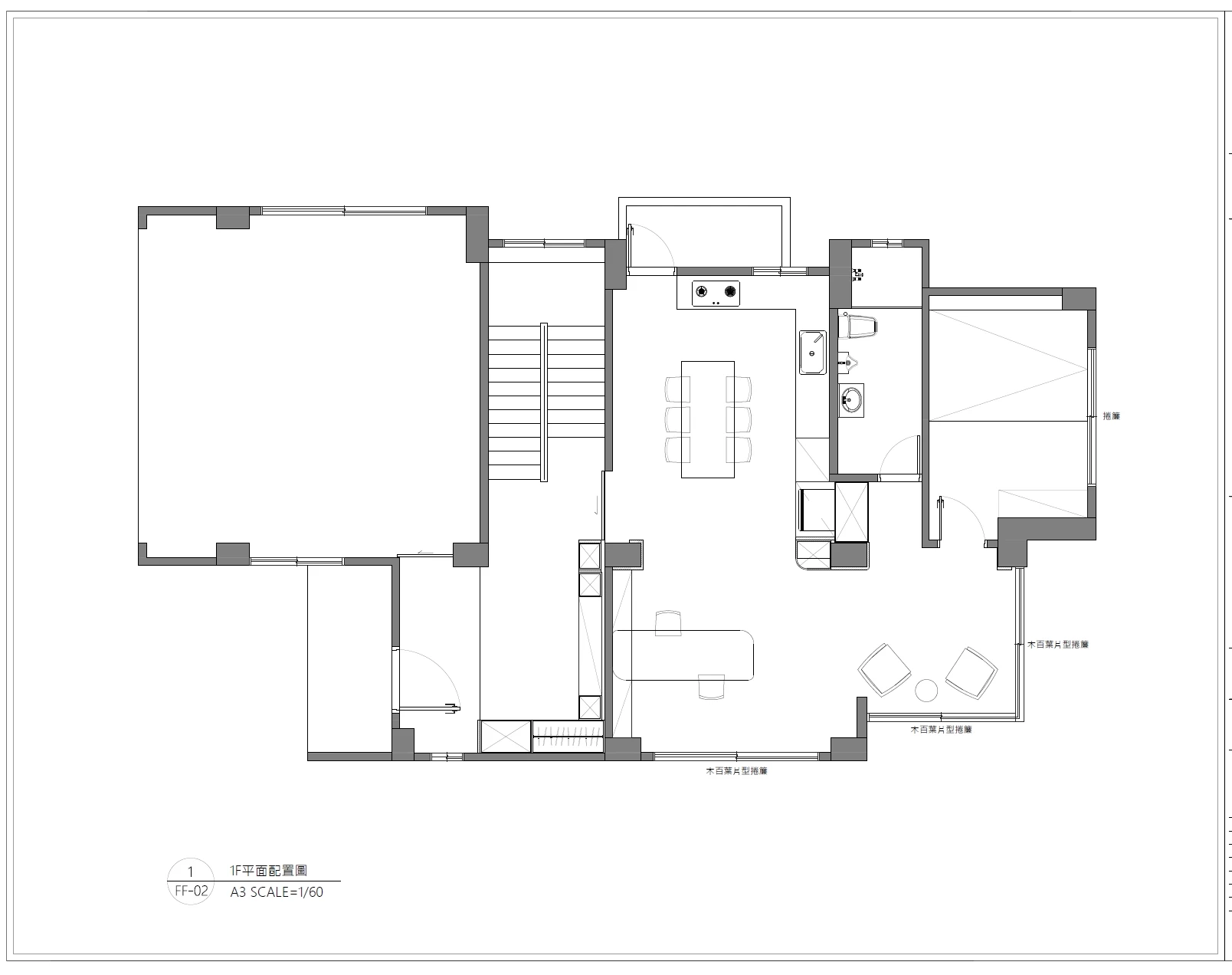
1樓

2樓&B1

玄關&樓梯設計
屋主喜歡美式玄關,為配合事先選好的黑白色地磚,運用大理石紋牆搭配L型白色壁櫃,將端景結合收納機能來成就美式大器風格。樓梯則以木質搭配貼心壁燈展現溫潤質感。



客廳&餐廚區設計
一樓規劃有開放起居區與餐廚區,藉由非正式懶人座區及共讀桌區,強調出三面採光優勢與落地窗景,打造出沉浸式自然好宅;而木拱門造型則可界定餐廚區,增加空間層次感。



1F多功能客房
多功能房間位於一樓起居區,以類和室的木地板設計,除了可做為客房用,平日也可當遊戲房讓孩子在這裡玩耍,或是午睡小憩。


B1F視聽娛樂室設計
地下一樓視聽室,既可滿足男主人獨立欣賞音樂的需求,也能取代客廳全家觀看電視的功能,同時還搭配輕食吧檯來提升娛樂機能。


2F主臥室設計
為解決問題床頭後方樑柱阻隔及建築施工造成畸零牆面,採用造型床頭櫃作包覆,除增加收納櫃,也消弭柱體與畸零區;左右對稱的邊桌是升級版床邊几,提供完整化妝、工作機能。
\

After
「一樓公共區以白色與奶黃牆面形成簡約配色,並藉此襯托餐廚與起居區之間的木拱門造型,其實木拱門除了裝飾與界定格局外,也肩負大樑與柱體的修飾重責,同時在柱體旁再加設隱藏門櫃來提升收納機能。」三月木設計。
