前言
這是許多預售屋主在面對客變時,心中最真實的聲音。為了省下眼前的客變設計費,許多人選擇自己上陣,卻很可能在交屋後又要花上幾十萬來補修,甚至比當初找設計公司做客變的費用貴上好幾倍。省到頭來,其實一點也不省,還多花更多時間與心力在返工上。
客變不只是「改格局」這麼簡單。它涉及機電迴路、排水系統、空調配置等複雜的專業問題。一旦建商蓋好交屋,這些「藏在牆裡」的東西就很難再改了。改得動,也要花大錢敲牆、重拉管線,不僅費用高,還可能受限於現場條件與既有配置,而留下使用上的遺憾。
更重要的是,客變的機會只有一次,錯過了,就真的回不去了。
本文將帶您了解預售屋客變的眉角,從基礎觀念到幫助您避開那些「省錯地方」的陷阱,讓你的家,從一開始就走在正確的道路上。
▲新竹預售屋客變案例:日式奶油宅
一、客變的黃金時機
1.思考居住需求:要幾房?需要更衣室嗎?廚房要開放式還是封閉式?
2.找設計師討論:讓設計師了解你的需求,進行全面規劃。
3.專業圖面繪製:設計師依需求繪製客變後的格局、機電、空調等圖面。
4.送審與報價:客變圖提交建商審核與確認可更改之項目、加減費用估算。
5.簽約確認:與建商、設計師三方會談,最終簽署客變同意書。
如果等建商通知才開始想,很容易在時間壓力下倉促決定,留下遺憾。建議在簽約後就開始規劃,給自己充足的時間思考與準備。
三月木提醒:客變是「減法」工程,而非「加法」。主要是「退掉」建商的標配,而非無限制地增加。所有變更都需在建商的規範與建築法規下進行。
二、客變常見五大陷阱:小心省小錢,日後花大錢
| 陷阱項目 | 問題描述 | 解決方式 |
|---|---|---|
| 總開關箱迴路未預留 | 建商標配的迴路數量只是「基本款」。未來想增加高功率電器(如洗碗機、烤箱)時,才發現無迴路可用。 | 請設計師評估您的電器需求,預留足夠的迴路空間,確保用電安全與便利性,避免日後跳電可能。 |
| 浴室未規劃專用迴路 | 想安裝免治馬桶、暖風機、電熱毛巾架時,才發現浴室只有一個普通插座,甚至無法敲磚,只能拉明線。 | 即使現在不裝設備,也要先在浴室預留專用迴路、防水及漏電斷路插座,日後才能輕鬆安裝。 |
| 廚房插座與排水口 | 建商標配給廚房的插座數量與位置,往往不符合實際使用需求。想裝廚下型淨水器或熱水器時,才發現沒有插座和排水。 | 客變時列出所有可能用到的廚房設備,請設計師一次規劃好插座、給排水、專用迴路,避免日後補救。 |
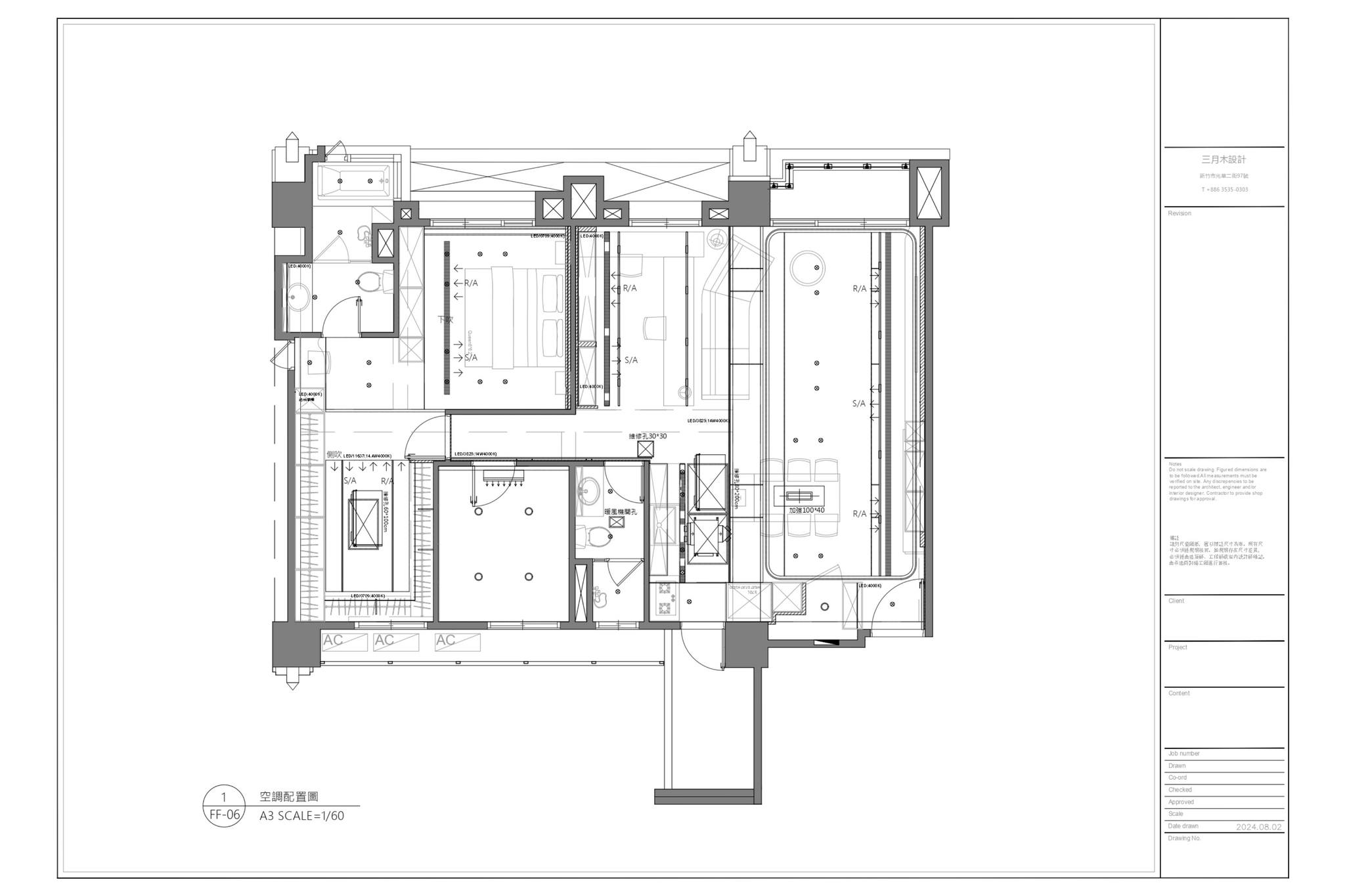
| 空調排水位置不當 | 建商預留的冷氣排水孔位置固定,可能導致冷氣機只能安裝在不理想的位置,或造成管線過長、坡度不足,引發積水、堵塞或滲水問題。 | 設計師會整合室內設計,規劃最佳的冷氣機位置與排水路徑,確保排水順暢,並兼顧天花板造型美觀。 |
| 全熱交換器未預留管線 | 想安裝全熱交換器或吊隱式除濕機來改善室內空氣品質,卻發現沒有預留排水,交屋後管線只能走樑下,壓縮天花板高度。 | 在客變階段請建商預留冷氣排水及除濕機排水,是安裝全熱交換器的關鍵。 |
三、實際案例分享
我們曾協助一對夫妻進行預售屋客變。他們的需求很明確:
原始格局:
四房兩廳,公領域空間被切的很零碎,廚房設備配置不符合需求。
業主需求:
兩人居住,希望有寬敞的客廳、獨立更衣室,以及符合他們烹飪習慣的廚房,並提升整體生活質感。
客變設計對策:
- 格局重塑:四房改兩房,將其中兩間次臥的空間釋放,併入公領域和規劃為主臥的更衣室。
- 動線優化:書房從封閉式改開放式,讓整體空間視野更開闊。
- 機能整合:預先規劃好全室燈具、空調、全熱交換器等所有管線,並重新配置所有插座與開關位置,使其完全符合居住者的生活習慣。
客變後成果展現:
▼建商提供的原始四房格局,空間劃分零碎,公領域受限。
▼根據業主生活需求,提前規劃空間平面配置,四房改為兩房+獨立更衣室,公領域更完整,動線更流暢。
▼完工後的公領域,空間更顯開闊,大理石電視牆與溫潤的木地板,營造出輕奢沉穩的氛圍。



▼書房由封閉式改為開放式,讓整體空間視野更開闊。

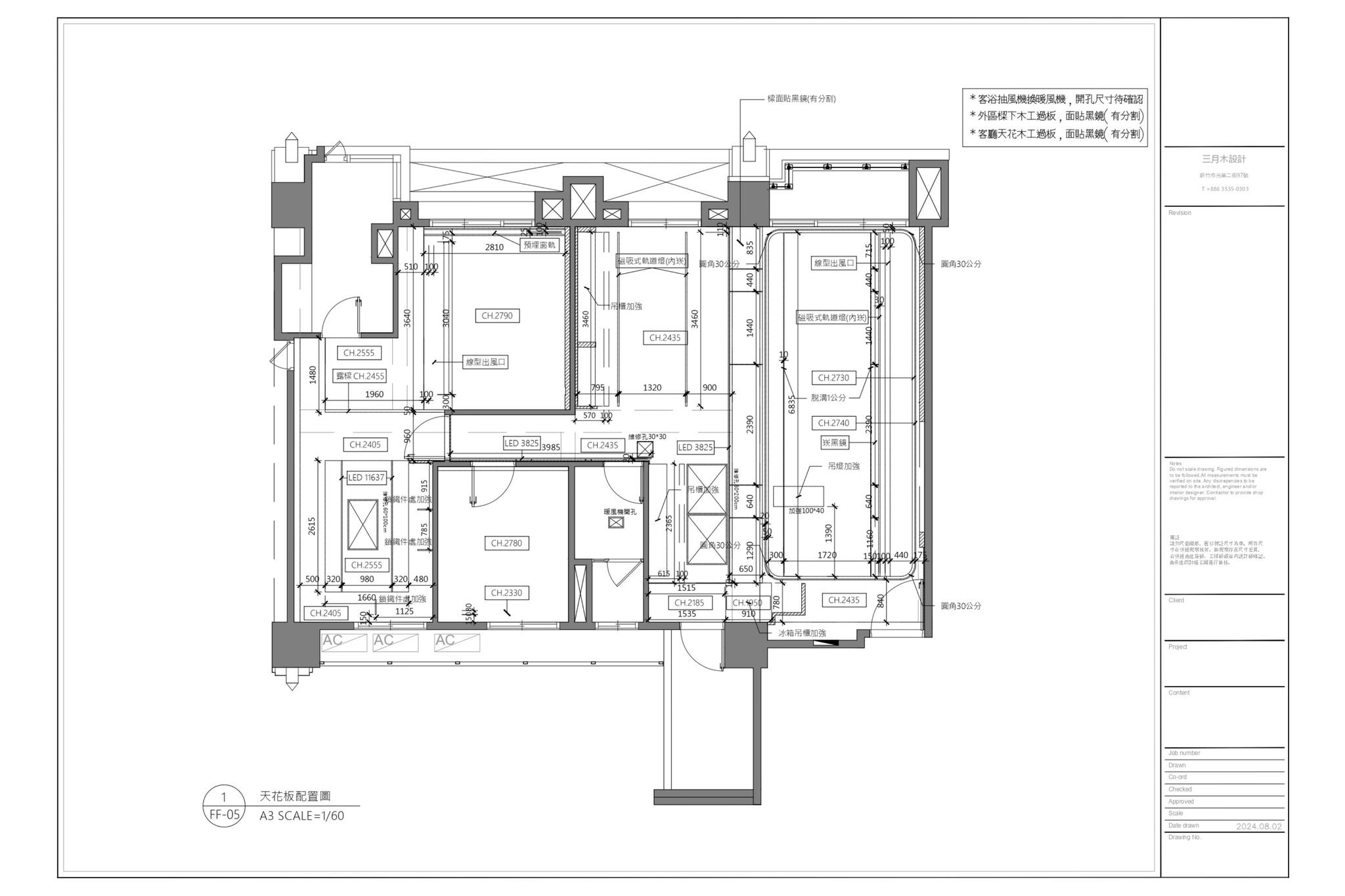
四、客變規劃圖面解析
四、客變要不要找設計師?這樣評估最清楚
看到這裡,您可能會想:「我一定要找設計師嗎?自己跟建商溝通不行嗎?」
答案是:如果您只是簡單的調整(如退掉一面牆、移動一個插座),可以自己處理。
但如果涉及格局變更、水電管線、設備需求,強烈建議找專業設計師。
原因很簡單:
設計師懂格局與工法:哪面牆可以拆或不能拆,設計師一看就知道。
設計師懂規劃與設備:插座要幾個、迴路要幾條?專業設計師能幫您規劃。
設計師能整合需求:您提出「我要更衣室」。設計師會幫您思考「更衣室要多大?燈光怎麼配?」等更完整的規劃。
設計師能幫您省錢:專業且經驗豐富的設計師,能幫您省下交屋後幾十萬的補救費用。
結論:客變只有一次機會,讓問題一次解決
如果您也即將面臨預售屋客變,建議您:
1.簽約後就開始規劃,不要等建商通知才開始。
2.認真思考自己的需求,包括現在與未來的生活型態。
3.找專業設計師協助,做出完整規劃,避開常見陷阱。
4.預留彈性空間,即使現在用不到也要先預留,日後才不會後悔。
延伸閱讀:客變是甚麼意思?一文了解客變意思、流程及注意事項



